Llucmajor - Badia Blava:
Exklusives Chalet auf Mallorca mit Meerblick, Pool & großzügigen Außenbereichen
Objekt-Nr.: AT-CT177

Aussicht

Dachterrasse

Wohnzimmer

Wohnzimmer

Wohnzimmer

Schlafzimmer

Schlafzimmer

Schlafzimmer

Schlafzimmer

Küche

Küche

Essbereich

Bad

Bad

Bad

Bad

Dachterrasse

Dachterrasse

Dachterrasse

Terrasse

Terrasse

Außenansicht

Pool

Pool

Garten

Pool

Aussicht

Einfahrt

Garage

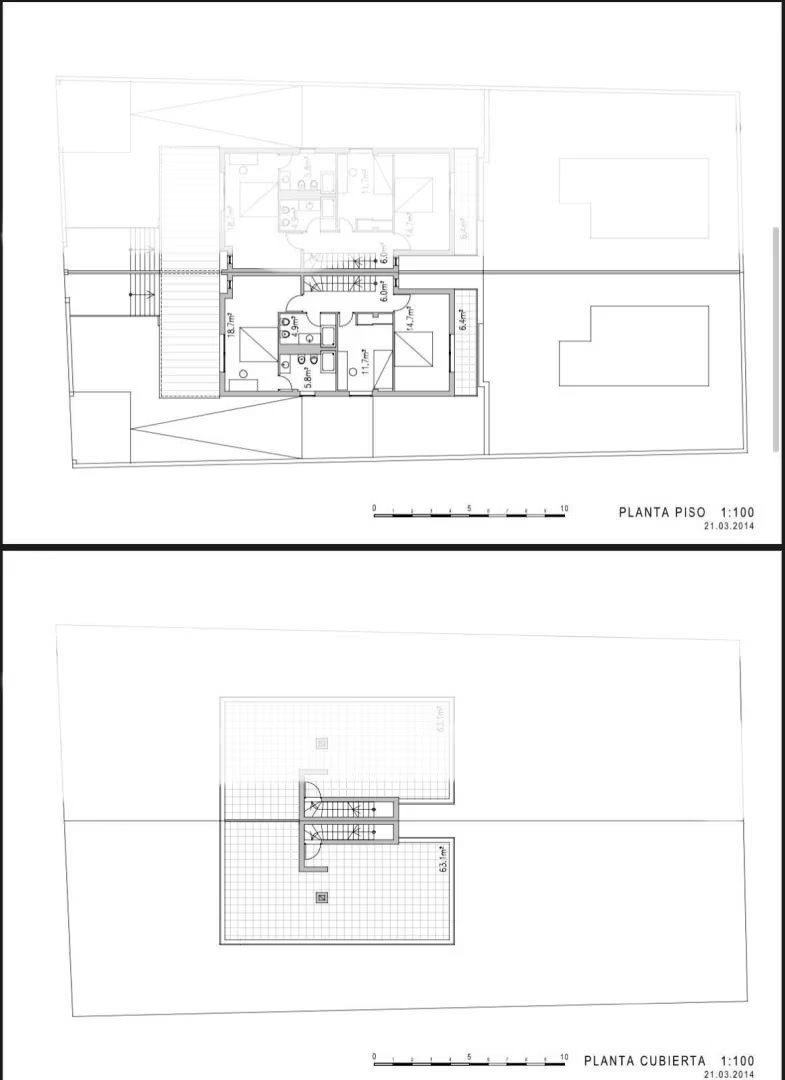
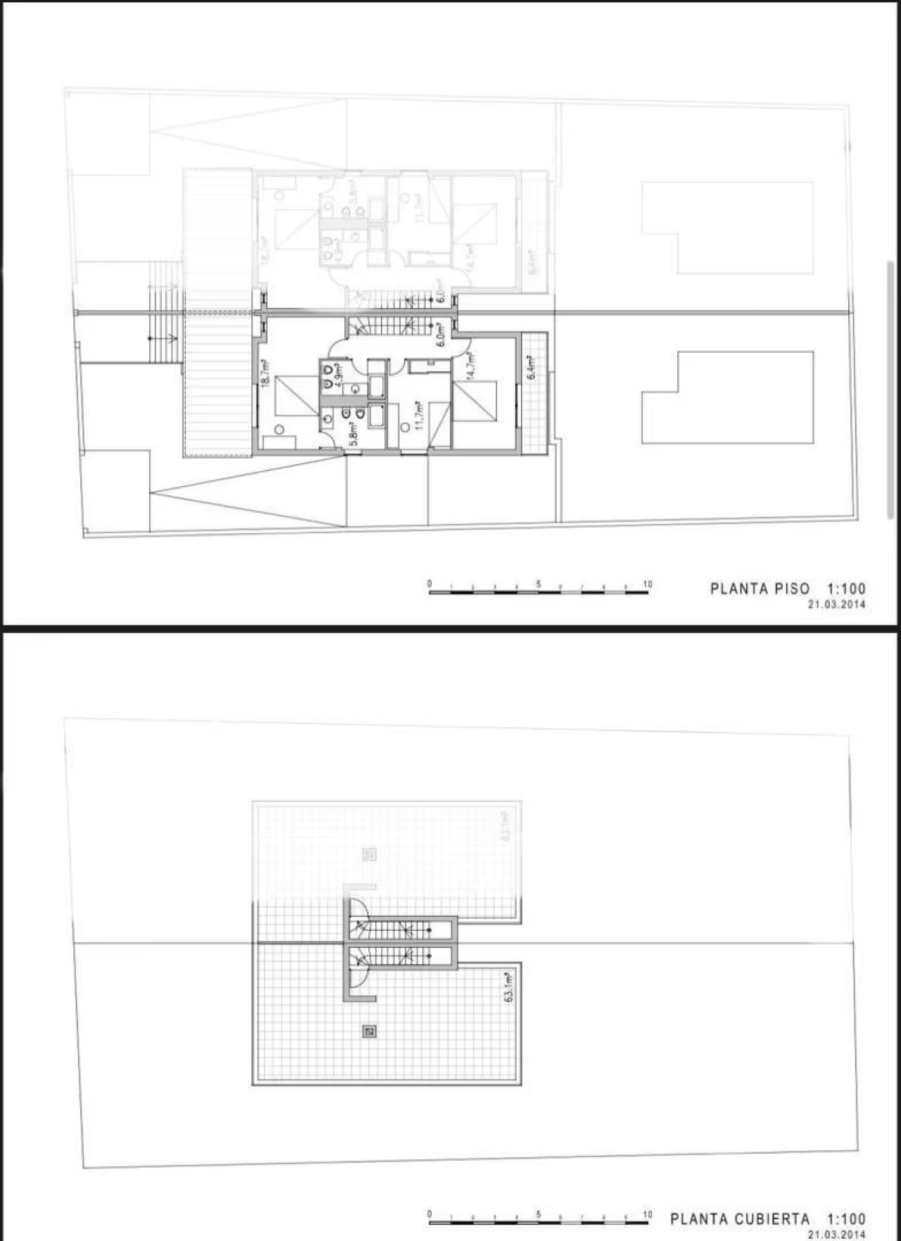
Grundriss

Grundriss

Grundriss
































Preis:
850.000 €
Wohnfläche ca.:
153 m²
Grundstück ca.:
350 m²
Zimmeranzahl:
4
Diese moderne Doppelhaushälfte verbindet mediterrane Eleganz mit zeitgemäßem Wohnkomfort und einer ruhigen, privilegierten Lage an der Südküste Mallorcas.
Das Anwesen überzeugt durch seine klare Architektur, lichtdurchflutete Räume und einen Außenbereich, der zum Entspannen und Genießen einlädt.
Mit einer Gesamtfläche von ca. 349 m² auf zwei Etagen bietet das Haus großzügigen Raum für Familie, Gäste oder als luxuriöses Ferienrefugium.
Die Immobilie befindet sich in einem gepflegten Zustand und besticht durch hochwertige Materialien, geschmackvolles Design und einen atemberaubenden Meerblick, der das mediterrane Lebensgefühl perfekt einfängt.
Im Erdgeschoss befindet sich ein offener, lichtdurchfluteter Wohn- und Essbereich mit direktem Zugang zur privaten Poolterrasse und dem gepflegten Garten mit Rasenfläche. Die moderne Designküche ist vollständig ausgestattet und schafft eine harmonische Verbindung zwischen Funktionalität und Stil. Ein Gästebad rundet diese Etage ab.…
Im Obergeschoss liegen drei Schlafzimmer, darunter ein Hauptschlafzimmer mit Bad en Suite und Zugang zu einer privaten Terrasse mit Blick ins Grüne. Ein weiteres Badezimmer mit Badewanne bietet zusätzlichen Komfort. Die großzügige Dachterrasse (ca. 78 m²) begeistert mit freiem Blick auf das Meer und die Küstenlinie – ein idealer Ort für Sonnenuntergänge oder entspannte Abende unter dem Sternenhimmel.
Die Immobilie wurde im Jahr 2008 errichtet und bietet neben einer Garage mit direktem Zugang, Klimaanlage (warm/kalt) und Infrarotheizung auch ein modernes Raumkonzept, das auf Komfort und Energieeffizienz ausgelegt ist.
Rufen Sie heute noch an und vereinbaren Ihren persönlichen Besichtigungstermin unter +34 677 33 32 93 oder +49 177 3950331
Haustyp: Doppelhaushälfte
Etagenanzahl: 2
Nutzfläche ca.: 349 m²
Küche: Einbauküche
Bad: Dusche, Wanne, Fenster
Anzahl Schlafzimmer: 3
Anzahl Badezimmer: 3
Balkon: 1
Terrasse: 1
Gäste-WC: ja
Garten: ja
Pool: ja
Keller: voll unterkellert
Klimaanlage: ja
Umgebung: Wohngegend
Anzahl der Parkflächen: 1 x Garage
Möbliert: Teilmöbliert
Ausblick: Meerblick
Baujahr: 2008
Bodenbelag: Fliesen
Energieklasse: E
Das könnte Ihnen auch gefallen




















