Palma :
Büroräume mit genehmigter Umnutzung zu Wohnraum im Zentrum Palmas
Objekt-Nr.: KT-CT188

Aussicht

Wohnzimmer

Schlafzimmer

Schlafzimmer

Wohnbereich

Bad

Bad

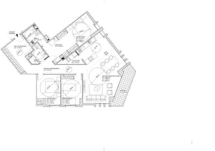
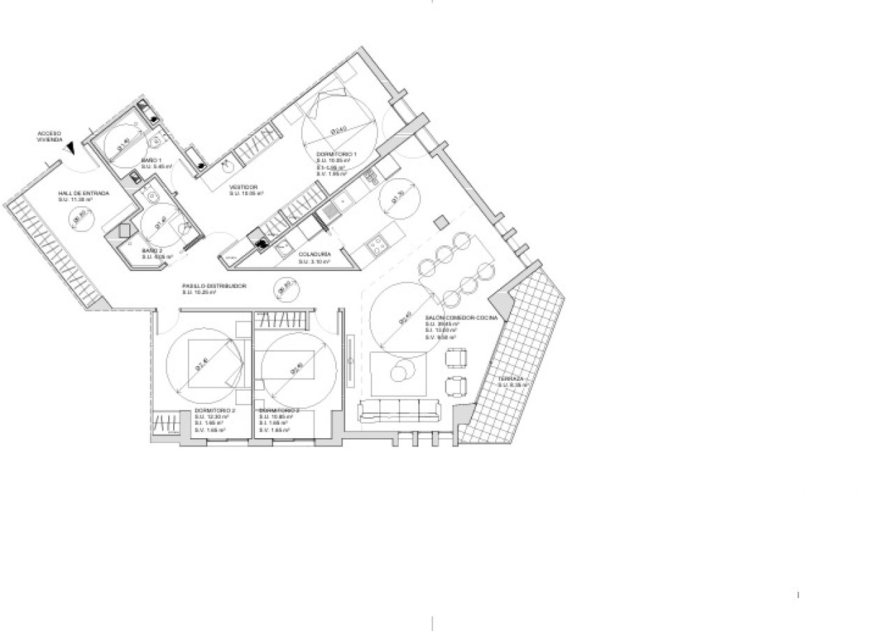
Grundriss








Preis:
590.000 €
Wohnfläche ca.:
140 m²
Zimmeranzahl:
3
Diese außergewöhnliche Immobilie eröffnet vielseitige Möglichkeiten im Herzen der Stadt und verbindet zentrale Lage mit beeindruckendem Entwicklungspotenzial. Die derzeit als Büroräume genutzte Einheit befindet sich im 4. Obergeschoss eines gepflegten Büro- und Wohnhauses mit insgesamt neun Etagen und bietet eine Gesamtfläche von ca. 160 m². Zwei Aufzüge gewährleisten komfortablen Zugang.
Der repräsentative Eingangsbereich des Gebäudes ist videoüberwacht und wird zusätzlich durch eine Empfangsdame betreut.
Besonders hervorzuheben ist der großzügige Balkon, der einen direkten Blick auf das pulsierende Stadtleben Palmas ermöglicht und der Einheit eine seltene Kombination aus Urbanität und Freiraum verleiht. Trotz der zentralen Lage präsentiert sich das Haus in ruhiger Atmosphäre – ein klarer Vorteil für Arbeiten, Wohnen oder eine zukünftige Umnutzung.…
Aktuell verfügt die Einheit über eine offene Bürostruktur sowie zwei separate Toiletten. Dank der bereits vorliegenden behördlichen Genehmigung besteht die Möglichkeit, die Fläche in eine 4-Zimmer-Wohnung oder alternativ in zwei separate 2-Zimmer-Wohnungen umzuwandeln. Aktuelle Pläne sowie die der 4 Zimmer Wohnung liegen vor und ermöglichen eine klare Planungssicherheit.
Für die Umwandlung ist eine umfassende Sanierung erforderlich, wodurch sich für Investoren und Eigennutzer die Chance bietet, ein maßgeschneidertes Wohnkonzept nach eigenen Vorstellungen zu realisieren. Ob hochwertiger Stadtwohnsitz oder renditestarke Wohnlösung – die Flexibilität dieser Immobilie ist ein entscheidender Mehrwert.
Im selben Gebäude besteht zudem die Möglichkeit, einen Parkplatz anzumieten, was in zentraler Lage einen nicht zu unterschätzenden Vorteil darstellt.
Wohnungstyp: Etagenwohnung
Etage: 4
Etagenanzahl: 9
Nutzfläche ca.: 157 m²
Anzahl Schlafzimmer: 2
Anzahl Badezimmer: 2
Balkon: 1
Gäste-WC: ja
Klimaanlage: ja
Fahrstuhl: ja
Umgebung: Einkaufsmöglichkeit
Möbliert: nein
Baujahr: 1983
Hausgeld: 150 €
Bodenbelag: Fliesen
Energieklasse: E
Das könnte Ihnen auch gefallen

Axel Bock Immobilien Service S.L.
Herr Cristian Teruel Mena
Telefon: +34 63375 2617

















































































